
H64Y type 1500 (Lb) ~ 2500 (Lb) high temperature butt welding check valve for Class1500 ~ 2500Lb, operating temperature -29 ~ 570 ℃ petroleum, chemical, thermal power stations and other conditions of the pipeline.
Product Usage
H64Y type 1500 (Lb) ~ 2500 (Lb) high temperature butt welding check valve for Class1500 ~ 2500Lb, operating temperature -29 ~ 570 ℃ petroleum, chemical, thermal power stations and other conditions of the pipeline.
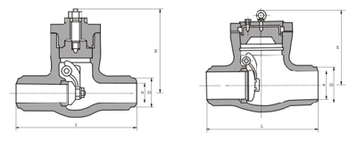
H64Y-1500Lb main shape and connection dimensions
|
Nominal diameter PNS(in) |
Dimensions and connection dimensions |
weight |
||
|
d |
L |
H |
||
|
2 |
50 |
330 |
240 |
40 |
|
3 |
60 |
368 |
305 |
60 |
|
4 |
80 |
457 |
315 |
95 |
|
5 |
96 |
533 |
409 |
170 |
|
6 |
118 |
610 |
465 |
186 |
|
8 |
147 |
762 |
528 |
415 |
|
10 |
180 |
914 |
613 |
658 |
|
12 |
222 |
1041 |
680 |
1200 |
|
14 |
254 |
1118 |
745 |
1638 |
H64Y-2500Lb main shape and connection dimensions
|
Nominal diameterPNS(in) |
Dimensions and connection dimensions |
weight |
||
|
d |
L |
H |
||
|
3 |
54 |
368 |
297 |
44 |
|
4 |
70 |
457 |
385 |
110 |
|
5 |
86 |
533 |
410 |
130 |
|
6 |
104 |
610 |
455 |
192 |
|
8 |
130 |
762 |
557 |
466 |
|
10 |
162 |
914 |
615 |
730 |
|
12 |
210 |
1041 |
715 |
1120 |
|
14 |
234 |
1118 |
790 |
1495 |
|
16 |
264 |
1245 |
815 |
1950 |
|
18 |
304 |
1397 |
815 |
2400 |
Structure picture
If you have any enquiry about quotation or cooperation,please feel free to email us at info@cnlg-valve.com or use the following enquiry form. Our sales representative will contact you within 24 hours. Thank you for your interest in our products.