
Blind valve, also known as the glass valve, flap valve, fan valve, widely used in industrial and mining enterprises, municipal, environmental and other industries gas media management system, especially for harmful, toxic, flammable gas absolute cut off. Is also suitable for the blind end of the pipeline to shorten the maintenance time or to facilitate the connection of the new pipeline.
Product Usage
Blind plate valve, also known as the optical valve, flap valve, fan valve, widely used in industrial and mining enterprises, municipal, environmental and other industries gas media management system, especially for harmful, toxic, flammable gas absolute cut off. Is also suitable for the blind end of the pipeline to shorten the maintenance time or to facilitate the connection of the new pipeline.
Product Structure and Features
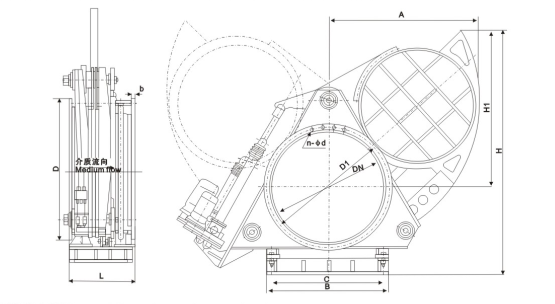
Hydraulic fan blind valve mainly by the left valve body, the right valve body, screw pair, flap, seals, levers, hydraulic cylinders and other components, and by the base, the support column to form a rigid structure. The valve is provided with a clamping cylinder and a vane cylinder. The clamping cylinder drives the left and right valve bodies to be loosen and clamp by the lever pair and the screw helical pair, and the vane cylinder drives the vane to complete the switching action. Rubber ring embedded in the flap, with high temperature, good sealing performance, easy replacement, long service life and so on.
Product main parameters
Nominal pressure MPa 0.25 0.15 0.10 0.05
Seal test pressure MPa 0.275 0.165 0.11 0.055
Strength test pressure MPa 0.40 0.225 0.15 0.075
Applicable temperature ℃ Nitrile rubber Silicone rubber Viton <120 <250 <300
The main shape and connection size
|
DN |
D |
D1 |
b |
n-φd |
L |
|
300 |
440 |
395 |
18 |
12-φ22 |
500 |
|
350 |
490 |
445 |
18 |
12-φ22 |
600 |
|
400 |
540 |
495 |
24 |
16-φ22 |
600 |
|
450 |
595 |
550 |
24 |
16-φ22 |
600 |
|
500 |
645 |
600 |
26 |
20-φ22 |
600 |
|
600 |
755 |
705 |
26 |
20-φ26 |
600 |
|
700 |
860 |
810 |
26 |
24-φ26 |
600 |
|
800 |
975 |
920 |
35 |
24-φ30 |
800 |
|
900 |
1075 |
1020 |
35 |
24-φ30 |
800 |
|
1000 |
1175 |
1120 |
35 |
28-φ30 |
800 |
|
1100 |
1275 |
1220 |
35 |
36-φ30 |
800 |
|
1200 |
1375 |
1320 |
35 |
32-φ30 |
800 |
|
1300 |
1475 |
1420 |
35 |
36-φ30 |
800 |
|
1400 |
1575 |
1520 |
35 |
36-φ30 |
800 |
|
1500 |
1675 |
1620 |
35 |
36-φ30 |
850 |
|
1600 |
1790 |
1730 |
35 |
40-φ30 |
850 |
|
1800 |
1990 |
1930 |
35 |
44-φ30 |
1100 |
product structure
If you have any enquiry about quotation or cooperation,please feel free to email us at info@cnlg-valve.com or use the following enquiry form. Our sales representative will contact you within 24 hours. Thank you for your interest in our products.